切换到宽版
  • 5阅读
  • 1回复

[奇观]成都玉林C-SCHOOL / 有门建筑//隈研吾事务所新作:波兰新公共图书馆,螺旋阅读空间围绕中庭展开[52P] [复制链接]

上一主题 下一主题
在线jjybzxw

UID: 551814

 

发帖
236485
金币
816841
道行
2006
原创
2459
奖券
3500
斑龄
44
道券
1548
获奖
0
座驾
设备
摄影级
在线时间: 50404(小时)
注册时间: 2008-10-01
最后登录: 2026-03-25
只看楼主 倒序阅读 楼主  发表于: 6小时前
成都玉林C-SCHOOL / 有门建筑[41P]



▲ 外立面及小庭院 ©李斌
当教育空间离开校园的围墙,与老社区深度叠合,会产生怎样的化学反应?在成都玉林,标榜职业学院与有门建筑联手将一栋老式居民楼改造为实验性教学综合体——C-SCHOOL,以“社区即教室”的理念探索教育空间的更多可能性。

▲ 主入口 ©李斌
C-SCHOOL取“社区学校”之意。因其处在社区中,课程设置乃至教学空间设计考量,都与社区有着各种层面的联系。首批入驻的设计系学生不再闭门造车,而是参与大量的设计实践与在地研究课题,实现产、学、研一体化循环。

▲ 外立面全览 ©李斌

▲ 外立面全览 ©徐嘉韵
老居民楼原为厂职工宿舍,在原始格局基础上局部改扩建后,首层成为学校的公共空间,兼具教学、工坊、展览、图书室功能。

▲ 改造前原始状态 ©徐嘉韵

▲ 改造前原始状态 ©徐嘉韵

▲ 轴测图 ©有门建筑

▲ 主入口和门前保留的老树 ©徐嘉韵

▲ 主入口特写 ©徐嘉韵
除基本的固定置物架以外,桌椅家具均为模块化设计,可拼合或打散以适应多元场景。

▲ 模块化宿舍家具 ©有门建筑
改造刻意保留了居民楼的岁月痕迹,老式水磨石地面、走廊高窗等,经打磨修缮后焕发新的生命力。

▲ 侧入口 ©李斌
而建于上世纪的昏暗公寓在阳台处被尽可能打开,扩建形成新的沿街界面,在“隐私高度”之上用玻璃引入自然光,同时保留学生靠窗坐下后专注学习的安全感。

▲ 面向社区街道的侧入口 ©李斌

▲ 窗边自习区域 ©李斌

▲ 图书室自习区域 ©李斌
改造设计有意地模糊学校与社区的界线。沿街新增雨棚下方的空间没有被纳入室内,而是设座椅、成为社区街角的微型口袋公园。

▲ 侧入口与街角微型口袋公园 ©李斌

▲ 街角微型口袋公园晒太阳的社区居民们 ©李斌

▲ 街角微型口袋公园 ©李斌
学校公共空间在教学时间向社区敞开,欢迎居民进门看书、看展或与师生交流。原有绿化带和老银杏树得到保留,树下花坛边常能看到学生闲坐聊天。

▲ 学生作品展厅 ©李斌

▲ 学生作品展厅 ©徐嘉韵

▲ 讲座教室研讨会模式 ©李斌

▲ 讲座教室上课模式 ©徐嘉韵

▲ 电脑教室及学生工作坊 ©李斌

▲ 学生工作坊 ©李斌

▲ 电脑教室 ©李斌

▲ 局部打开墙面让教室之间通透 ©徐嘉韵

▲ 从工作坊看走廊 ©徐嘉韵

▲ 学生工作坊细节 ©徐嘉韵

▲ 学生工作坊细节 ©徐嘉韵

▲ 图书室 ©李斌

▲ 图书室自习区域 ©李斌

▲ 图书室全览 ©徐嘉韵

▲ 图书室全览 ©徐嘉韵
老居民楼的二至六层被改为宿舍区,根据需求设计了全套模块化家具,包括可自行调整隔层板的衣柜组合、书桌+置物架组合,带隐私隔板的上下铺,方便寒暑假期间改装为青旅或邀请艺术家短期驻地。

▲ 公共区域走廊 ©李斌

▲ 宿舍入口的大穿衣镜 ©李斌

▲ 面向居民楼的茶水间 ©李斌

▲ 宿舍洗漱间 ©李斌

▲ 宿舍内部的模块化家具 ©徐嘉韵
当“传统校园+固定教室”的模式被解构,C-SCHOOL展现出教育空间的社会价值。不仅在于学习行为的场所,更在于其作为社区关系催化剂的潜能。

▲ 标准层平面图 ©有门建筑

▲ 主入口立面图 ©有门建筑

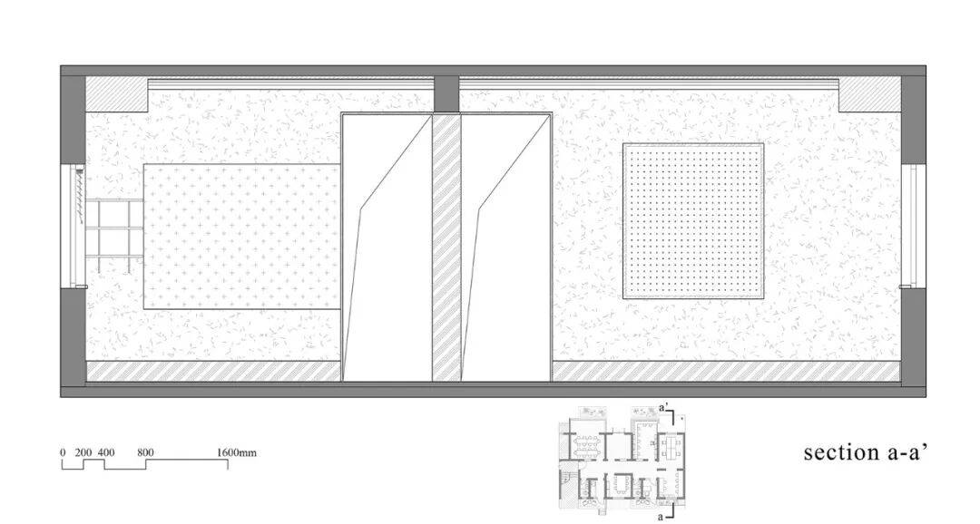
▲ 剖面图 ©有门建筑

▲ 剖面图 ©有门建筑

▲ 剖面图 ©有门建筑
项目信息
项目名称:C-SCHOOL
设计方:有门建筑
项目设计、完成年份:2024
主创及设计团队:唐倩文、周柯地、徐嘉韵
项目地址:成都武侯区芳草街道蓓蕾街17号
建筑面积:708 ㎡
摄影版权:李斌、徐嘉韵
客户:四川国际标榜职业学院
装修主材:水泥自流平、艺术涂料、不锈钢、手工砖
========================================================================================================================================


隈研吾事务所新作:波兰新公共图书馆,螺旋阅读空间围绕中庭展开[11P]


由隈研吾建筑都市设计事务所(Kengo Kuma & Associates)设计的“Vortex of Words”公共图书馆项目位于波兰东南部城市Rzeszów。该方案在国际设计竞赛中胜出,选址位于城市主要交通轴线Józef Piłsudski大道附近,邻近波德卡尔帕切省政府办公楼与教育设施。热舒夫是波兰重要的航空工业中心,人口约20万,新图书馆的建设被视为强化城市公共文化空间的重要项目。


建筑总建筑面积约18,961平方米,规划为地上5层、地下1层。项目不仅包含传统图书馆阅读与藏书功能,还整合音乐厅、多功能厅、会议空间与展览区域,形成集阅读、教育与文化活动于一体的公共文化建筑。建筑同时承担城市公共空间的角色,通过开放广场与屋顶露台连接周边街区。

设计概念来源于“文字的漩涡”。建筑内部围绕中央中庭形成螺旋式上升的空间结构,各层阅读空间沿连续坡道和平台逐渐上升。访客从首层大厅进入后,可以沿着环绕中庭的阅读路径逐层向上移动。中庭顶部设置大型天窗,使自然光从屋顶进入并贯穿整个建筑,阅读区在垂直方向形成视觉联系。


螺旋式空间不仅是内部结构,也构成主要公共动线。不同高度的平台设置阅读区、休息区与展览空间,使访客在移动过程中不断获得新的空间视角。建筑外围设置连续的绿色露台,从地面逐层延伸至屋顶平台。屋顶露台向公众开放,可作为城市观景空间,同时加强建筑与周边街区之间的联系。


在城市层面,设计通过一条被称为“安静漫步道”的步行路径连接街道与图书馆入口。入口广场根据行人流线组织,可在日常作为公共休憩空间,并在举办书展或文化活动时转化为开放活动场地。广场地下预设电力与给排水接口,以便举办大型公共活动。

结构体系采用CLT与LVL工程木材结合钢结构的混合体系,在满足大跨度空间需求的同时降低碳排放。木结构材料为室内空间提供温暖的视觉效果,也成为建筑空间体验的重要组成部分。屋顶与平台绿化形成连续生态带,为建筑增加公共活动空间,同时改善城市微气候。

项目还在交通与公共设施方面进行整合。场地设置自行车停车区、微型交通停靠点与电动车充电设施,并通过地下停车系统满足长期停车需求。铺装系统结合耐磨石材与透水材料,以提升雨水渗透与场地环境性能。


图片:Kengo Kuma & Associates
通过围绕中央中庭展开的螺旋空间,“Vortex of Words”图书馆将阅读、公共活动与城市景观整合在同一空间体系中。连续上升的阅读路径与外围绿色露台形成多层次公共空间,使建筑在城市中心形成一处开放的文化节点,并在城市生活与公共文化活动之间建立联系。
山庄提示: 道行不够,道券不够?---☆点此充值☆
 
在线jjybzxw

UID: 551814


发帖
236485
金币
816841
道行
2006
原创
2459
奖券
3500
斑龄
44
道券
1548
获奖
0
座驾
设备
摄影级
在线时间: 50404(小时)
注册时间: 2008-10-01
最后登录: 2026-03-25
只看该作者 沙发  发表于: 6小时前
教育与文化的空间革命:从成都C-SCHOOL到波兰“文字漩涡”图书馆

建筑是社会的容器,亦是时代的镜像。当教育空间突破校园围墙,与社区深度融合;当图书馆超越藏书功能,成为城市文化漩涡——设计的边界被重新定义,空间的价值从功能满足升维为社会关系的催化剂与文化记忆的载体。  
成都玉林C-SCHOOL与波兰“Vortex of Words”公共图书馆,虽功能迥异,却共同展现了当代建筑如何通过空间创新回应教育转型与公共文化需求的核心命题。
一、成都C-SCHOOL:教育空间的社区化实验
1. 解构传统:从“校园围墙”到“社区即教室”
空间叠合:C-SCHOOL将一栋老式居民楼改造为教学综合体,首层公共空间(教学、工坊、展览、图书室)向社区开放,模糊学校与社区的物理边界。例如,沿街雨棚下设座椅形成微型口袋公园,居民可在此晒太阳、与师生交流,使教育空间成为社区关系的“催化剂”。  
功能共生:原有绿化带和老银杏树被保留,树下花坛成为学生闲坐聊天的场所;学校公共空间在教学时间欢迎居民看书、看展,形成“产、学、研”一体化循环。这种设计打破了教育空间的封闭性,使其成为社区文化生态的有机组成部分。
2. 历史对话:老居民楼的“时间层积”
痕迹保留:改造刻意保留老式水磨石地面、走廊高窗等岁月痕迹,经打磨修缮后焕发新生命力。例如,上世纪昏暗公寓的阳台被打开,扩建形成沿街界面,在“隐私高度”之上引入自然光,既保留学生专注学习的安全感,又让建筑成为社区光影的参与者。  
模块化适应:桌椅家具采用模块化设计,可拼合或打散以适应多元场景;宿舍家具(如可调整隔层的衣柜、带隐私隔板的上下铺)支持寒暑假改装为青旅或艺术家驻地,体现空间对教育模式变化的弹性响应。
3. 社会价值:教育空间的“第三种角色”
社区催化剂:C-SCHOOL证明教育空间可超越“学习场所”的单一功能,成为连接师生、居民与城市的纽带。例如,学生作品展厅对社区开放,展览内容常与社区在地研究相关,激发居民对本土文化的认同感。  
可持续更新:通过保留历史痕迹与模块化设计,建筑降低了改造成本与环境影响,为老城区更新提供了“轻介入”范本——既尊重历史文脉,又注入当代教育需求。
二、波兰“Vortex of Words”图书馆:城市文化的螺旋上升
1. 空间叙事:从“藏书容器”到“文字漩涡”
垂直动线:图书馆以“文字的漩涡”为概念,围绕中央中庭构建螺旋式上升的阅读空间。访客沿连续坡道与平台逐层移动,中庭顶部的大型天窗将自然光引入建筑深处,形成垂直方向的视觉联系与光影戏剧性。  
多层次公共性:不同高度的平台设置阅读区、休息区与展览空间,使阅读行为与公共活动交织。例如,访客可在移动中偶遇临时展览或社区讲座,阅读空间因此成为城市文化事件的发生器。
2. 生态整合:绿色露台与城市微气候
外围螺旋绿化:建筑外围设置连续的绿色露台,从地面逐层延伸至屋顶平台,形成“垂直花园”。屋顶露台向公众开放,可作为城市观景空间,同时通过植被降低建筑热负荷,改善周边微气候。  
可持续材料:结构采用CLT(交叉层压木材)与LVL(单板层积材)结合钢结构的混合体系,降低碳排放;木结构温暖的视觉效果与自然光呼应,强化了“阅读与自然共生”的空间体验。
3. 城市连接:步行路径与公共活动场域
“安静漫步道”:设计通过一条步行路径连接街道与图书馆入口,入口广场根据行人流线组织,日常作为公共休憩空间,活动时可转化为开放场地(如书展、文化市集)。广场地下预设电力与给排水接口,支持大型公共活动的快速部署。  
交通整合:场地设置自行车停车区、微型交通停靠点与电动车充电设施,鼓励绿色出行;地下停车系统满足长期停车需求,体现对城市交通生态的细致考量。
三、对比与启示:空间创新的共性逻辑
1. 功能复合:从单一到多元的升维
C-SCHOOL:将教学、居住、展览、社区交流等功能整合于一栋建筑,打破传统校园的功能分区,实现“教育-生活-社区”的闭环。  
图书馆:融合阅读、音乐厅、多功能厅、会议与展览功能,成为集文化、教育、社交于一体的城市客厅,回应公共建筑对“包容性”的需求。
2. 边界模糊:从封闭到开放的转型
C-SCHOOL:通过模块化家具、沿街口袋公园与向社区开放的公共空间,消解学校与社区的物理与心理边界,激发社会互动。  
图书馆:以螺旋动线与绿色露台构建“内部-外部”的渗透关系,使建筑成为城市景观的延伸,同时通过开放广场强化与街区的连接。
3. 文化赋能:从实用到精神的跨越
C-SCHOOL:保留老居民楼的历史痕迹,将“时间层积”转化为空间叙事的一部分,使教育空间承载集体记忆与文化认同。  
图书馆:以“文字的漩涡”为概念,将阅读行为升华为城市文化仪式,通过空间设计传递“知识流动与共享”的价值观。
结语:空间革命——教育与文化的未来图景

成都C-SCHOOL与波兰“Vortex of Words”图书馆,分别代表了教育空间与公共文化建筑的当代转型方向:前者通过社区化实验证明教育可成为社会关系的黏合剂,后者通过空间叙事将图书馆转化为城市文化的漩涡。两者的共同启示在于——建筑的价值不再局限于功能满足,而在于如何通过空间创新激发社会活力、连接文化记忆、塑造城市身份。  

在快速城市化的今天,我们更需要从这类作品中汲取灵感:无论是解构传统校园的围墙,还是重构公共建筑的角色,设计的核心始终是“人”——如何让人在空间中更好地学习、交流、创造与归属。这或许就是当代建筑最本质的使命。
如何不发帖就快速得到金币道行
 
快速回复
限120 字节
认真回复加分,灌水扣分~
 
上一个 下一个